
MIL-DTL-24705/1B(SH)
(4.75)
120.7
(8) RIVETS (OR SPOTWELD)
(3.20)
81.3
(3.59)
(2.440)
(0.04)
91.2
62.0
1.0
(0.94)
23.9
(0.156)
PIN MARKING
(0.593)
3.96
15.06
(5.06)
(0.20)
128.5
5.1
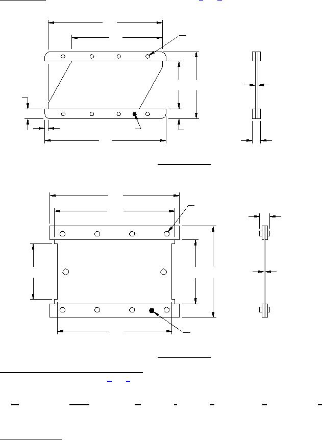
FIGURE 8. Style 1 stay plate.
(5.02)
127.5
(8) RIVETS
(4.675)
118.7
(0.209)
5.3
(3.504)
(2.441)
(2.205)
(0.02)
89.0
62.0
56.0
0.5
(4.528)
PIN MARKING
115.0
IN THIS AREA
FIGURE 9. Style 2 stay plate.
Part or identifying number (PIN) for stay plate. The item designation consists of a single digit corresponding to
a particular stay plate style (see figures 8 and 9). An example of a compression plate PIN for a style 2 steel stay
plate is provided below (see MIL-DTL-24705 for complete details).
M
24705
/1
-
S
S
2
Item
Prefix for Military
Specification
Spec Sheet
Item Type
Item Material
Designation
Specification
Number
No.
Materials, stay plate. The material specified for stay plates in the military designation shall be aluminum (A),
brass (B), CRES (C), or steel (S).
8
For Parts Inquires submit RFQ to Parts Hangar, Inc.
© Copyright 2015 Integrated Publishing, Inc.
A Service Disabled Veteran Owned Small Business