
MIL-DTL-24705/1B(SH)
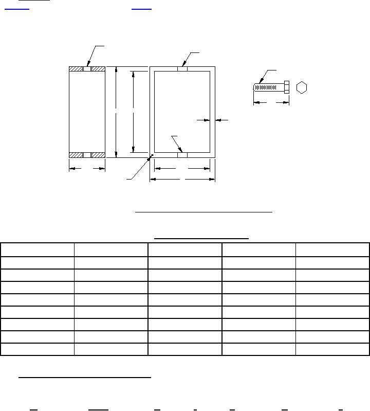
FRAMES. The construction of metal rectangular multiple cable penetrator frames shall be in accordance with
CONSTRUCTION
(1) 3/4-10 UNC-2B (STEEL
INSERT FOR ALUMINUM
3/4-10 UNC-2B
FRAMES ONLY)
3/4-10 UNC-2A
HEX HEAD BOLT
(2.50)
63.5
(1) COMPRESSION
B
A
BOLT
D
3/4-10 UNC-2B
(2.38)
(4.75)
60.5
120.7
PIN MARKING ON
C
ONE OF THESE
EDGES
FIGURE 2. Rectangular frame with associated hardware.
TABLE I. Rectangular frame dimensions.
Designator
A
B
C
D
FA2
100.8 (3.97)
126.2 (4.97)
146.3 (5.76)
12.7 (0.50)
FA4
159.5 (6.28)
184.9 (7.28)
146.3 (5.76)
12.7 (0.50)
FA6
218.2 (8.59)
243.6 (9.59)
146.3 (5.76)
12.7 (0.50)
FA8
277.1 (10.91)
302.5 (11.91)
146.3 (5.76)
12.7 (0.50)
FC2, FS2
100.8 (3.97)
119.9 (4.72)
140.0 (5.51)
9.6 (0.38)
FC4, FS4
159.5 (6.28)
178.6 (7.03)
140.0 (5.51)
9.6 (0.38)
FC6, FS6
218.2 (8.59)
237.2 (9.34)
140.0 (5.51)
9.6 (0.38)
FC8, FS8
277.1 (10.91)
296.2 (11.66)
140.0 (5.51)
9.6 (0.38)
Part or identifying number (PIN) for frame. Frames are differentiated by an item designation consisting of a
single digit corresponding to a particular size. An example of a frame PIN is provided below (see MIL-DTL-24705
for complete details).
24705
/1
-
F
A
4
M
Item
Prefix for Military
Specification
Spec Sheet
Item Type
Item Material
Designation
Specification
Number
No.
3
For Parts Inquires submit RFQ to Parts Hangar, Inc.
© Copyright 2015 Integrated Publishing, Inc.
A Service Disabled Veteran Owned Small Business