
MIL-DTL-24705/1B(SH)
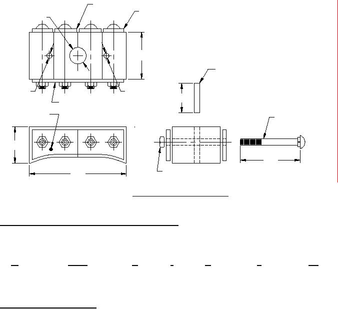
MIDDLE PLATE
2 REQUIRED
OUTER PLATE
2 REQUIRED
(0.79) 20.1 DIA
(2.36)
60.0
(0.236) 6.0 DIAMETER
DOWEL PIN
(0.24) 6.1 DIA
(0.24) 6.1 DIA
(1.496)
38.0
FRONT PLATE
PIN MARKING
5/16-18 UNC-2A
IN THIS AREA
ROUND HEAD SQUARE
NECK BOLT(4 PLACES)
(1.654)
42.0
(3.000)
76.2
5/16-18 UNC-2B
(4.716)
HEX NUT(4 PLACES)
119.8
FIGURE 5. Style 2A end-packing assembly.
Part or identifying number (PIN) for end-packing assembly. End-packing assemblies are differentiated by an
item designation consisting of a two alpha-numeric characters corresponding to a particular style. An example of an
end-packing assembly PIN for style 2A end-packing with steel hardware is provided below (see MIL-DTL-24705
for complete details).
24705
/1
-
A
S
2A
M
Item
Prefix for Military
Specification
Spec Sheet
Item Type
Item Material
Designation
Specification
Number
No.
Material, end-packing assembly. The material specified for end-packing assemblies in the military designation
pertains to hardware only. The material shall be designated as CRES (C) or steel (S).
5
For Parts Inquires submit RFQ to Parts Hangar, Inc.
© Copyright 2015 Integrated Publishing, Inc.
A Service Disabled Veteran Owned Small Business