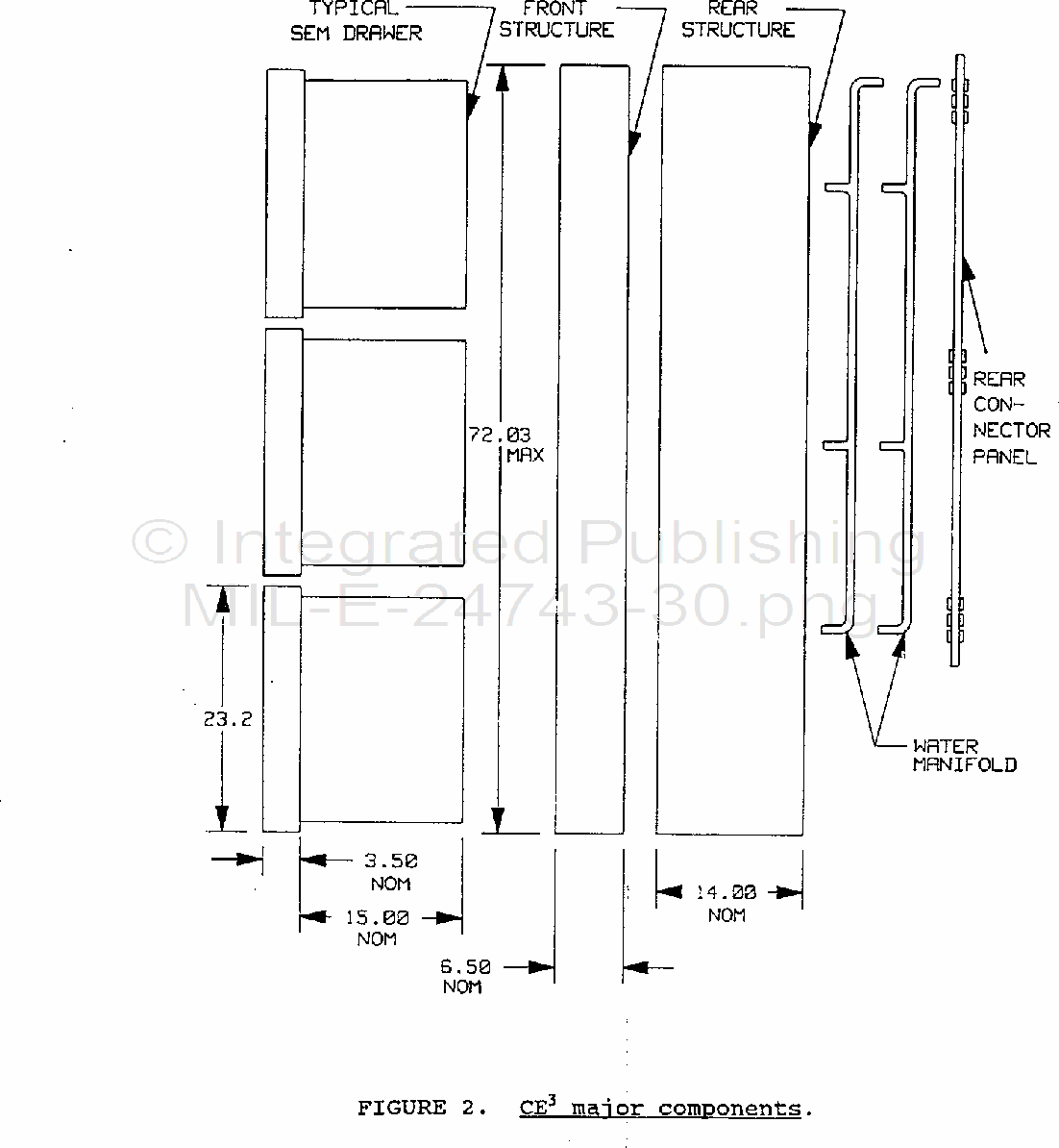
MIL-E-24743 Enclosure, Common Electronic Equipment, General Specification ForThis specification establishes the requirements for the design, manufacture and testing of a water-cooled, common electronic equipment enclosure (CE 3) for shipboard use within sheltered equipment spaces.